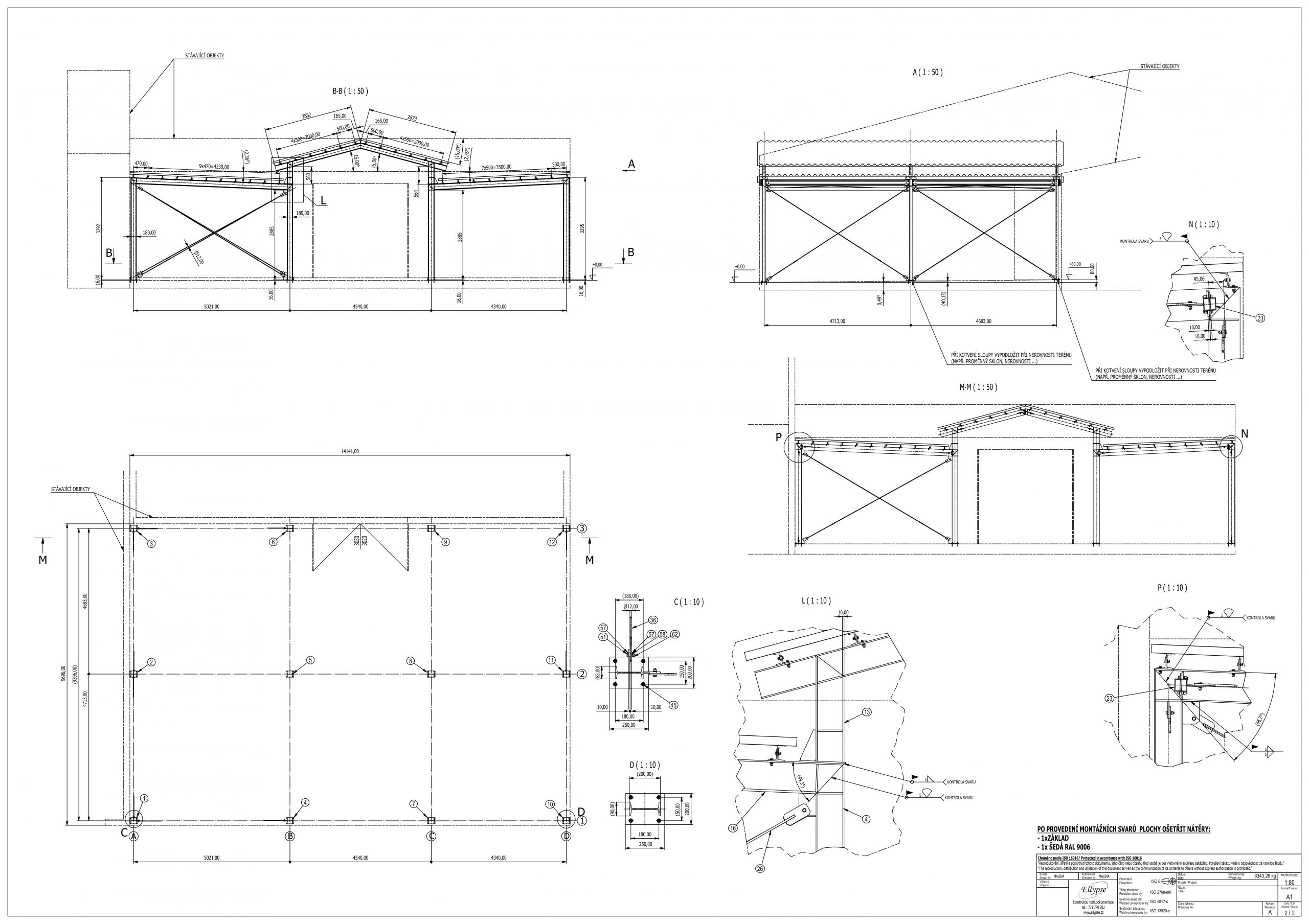
Výkresy

Příklady vzhledu výrobních výkresů dílů a sestav